Ir al contenido principal
Entramado ligero

Casa de entramado ligero de madera en TROCONIZ, Álava

Datos técnicos

  • Superficie
    130 m2
  • Localidad
    Troconiz
  • Provincia
    Álava
  • Arquitecto
    Alberto Esparza Resano
  • Construcción
    Ekoetxe Green Building S.L. & Ekoetxea S.L.

Planos


Descripción

Fruto de la colaboración entre Ekoetxe Green Building de Gernika y Ekoetxea, se llevó a cabo la construcción de esta vivienda unifamiliar utilizando nuestro sistema de entramado ligero en la localidad de Troconiz, en la provincia de Alava.

Se trata de una vivienda altamente eficiente, a la que en su momento se le otorgó la máxima certificación energética (grado A).  De hecho, ya en el 2013, fuimos pioneros en la instalación de una  bomba de calor GEOTERMICA tierra-agua con una potencia de 4,2 W y un COP de 4,7 W, que ha generado una gran cantidad de ahorros energéticos en estos más de 10 años de vida. A su vez, la propiedad decidió complementar su instalación geotérmica, con unos paneles solares de autoconsumo permitiendo producir electricidad renovable para su propio consumo, generando menor dependencia de los cambios de precios de la electricidad y un menor consumo de energía fósil, lo que contribuye a reducir las emisiones contaminantes a la atmósfera. Siendo muy sostenible.

Localizada en una parcela de 1.200 m², el emplazamiento se sitúa en el municipio de Iruraiz-Gauna. (compuesto por 11 pueblos de pequeño tamaño, que aunque agrupados administrativamente en un municipio común, constituyen a su vez 11 concejos. Ninguno de los concejos que componen Iruraiz-Gauna supera los 100 habitantes.)

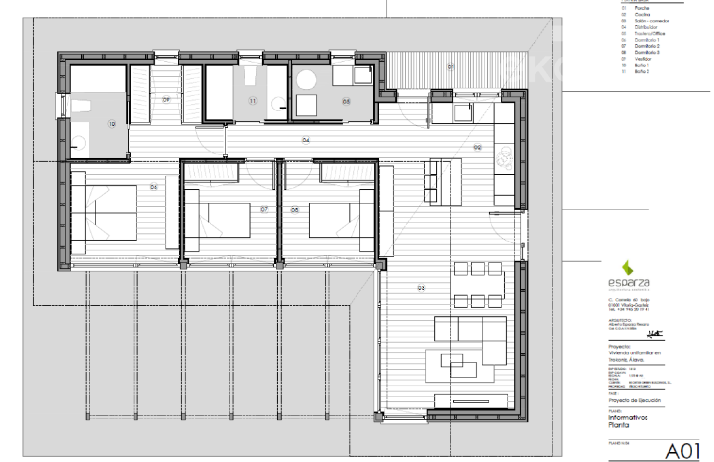
La vivienda se desarrolla en una sola planta. Cuenta con una superficie útil de 130 m², con una zona de porche cubierta, un dormitorio principal con vestidor de 18 m², otros dos dormitorios, y dos baños. Un amplio salón-comedor-cocina de 36 m². Los coches se guardan a cubierto, aunque se ha prescindido de zona de garaje como tal. 

Se asienta sobre un forjado sanitario, con dos arquetas de ventilación para acceder en caso que hubiera que realizar algún tipo de mantenimiento. La cimentación está formada por una serie de zapatas, pilares, vigas de 40×30, Riostras, Zunchos de 40×8 etc.. que aseguran el aclaje del forjado.

La envolvente está conformada por una estructura de entramado ligero de madera (entramado estructural interior y exterior de pino radiata Clase resistente C22 y los postes de madera de Alerce C22.) En la parte exterior los paneles utilizados como muros exteriores, vienen acabado con mortero acrílico talochado. 

En la parte interior, como aislamiento en la estructura y el trasdosado, se utiliza lana de roca por sus prestaciones térmicas y como medida de seguridad. Las cavidades que deja el entramado ligero permiten el paso de instalaciones y el relleno con aislante.

La carpintería viene en PVC. Todos los bastidores estructurales vienen prefabricados de origen, y son transportados por camión para ser ensamblados correctamente sobre el terreno.

12 años después de su construcción, dicha vivienda se encuentra en perfecto estado y la propiedad se está planteando la posibilidad de realizar una ampliación, ya que sus circusntancias han cambiado. Por supuesto podrán contar con nuestro sisterma de entramado ligero para realizarla.

Para saber más, pinche aquí: https://ekoetxea.com/casas-de-entramado-ligero/

*Desplazar a la drcha, para ver más fotos*

Casa_entramado_ligero_Troconiz_Ekoetxea_01

Casa_entramado_ligero_Troconiz_Ekoetxea_02

Casa_entramado_ligero_Troconiz_Ekoetxea_3

Casa_entramado_ligero_Troconiz_Ekoetxe_distribucion

    ¿Quieres saber más acerca de los servicios que ofrecemos en la construcción de casas unifamiliares?