Skip to main content
Modular

Casa modular prefabricada en IZARRA, Alava

Datos técnicos

  • Superficie
    133,90 m²
  • Localidad
    Izarra
  • Provincia
    Álava
  • Arquitecto
    Jesús Mesanza
  • Construcción
    Ekoetxea S.L.

Descripción

Esta preciosa vivienda se situa en la localidad de Izarra, dentro del municipio de Urcabustaiz, en la provincia de Alava, en el País Vasco.

Se trata de una construcción modular prefabricada situada en una parcela de 941 m2, en la parte alta del pueblo. Está sujeta a las normas subsidiarias municipales del Ayuntamiento de Urkabustaiz.

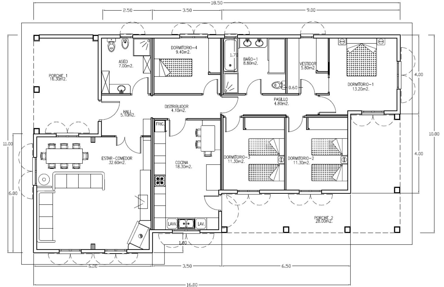
En fábrica se construyó el modelo ARABA I, el cual cuenta con una superficie útil de 133,90 m² se divide en salón-comedor, dormitorio A, dormitorio B, dormitorio C, dormitorio D, baño 1, baño 2 y Cocina, Hall, distribuidor y pasillo.

El garaje, abierto por un lateral, tiene una superfice de 11,80 m².

La edificación está conformada por módulos prefabricados construidos con paredes estructurales a base de pilares verticales de madera, con forjado de viguetas metálicas, y cubierta de estructura de madera. Aislante de lana de roca de 150 mm de espesor en cubierta asi como en los vuelos. Las participiones interiores con paredes/muros similares al exterior. 

Así mismo, los diferentes módulos pefabricados quedan elevados sobre el terreno, apoyándose sobre una base de muros de bloque de hormigón sobre la cimentación de zapatas corridas de hormigón armado, conformando un forjado sanitario. Este último nos ofrece dos ventajas: evitar cualquier tipo de problema de humedades al estar levantados del suelo, y que las instalaciones queden registradas. 

Todos los módulos vienen prefabricados de origen, y son transportados en diferentes camiones para ser ensamblados correctamente sobre el terreno.

La carpintería exterior es de madera de pino, gran acristalamietno con vidrios de doble acristalamiento 4+12+4, con contraventanas de madera. Cargaderos de madera al exterior de la vivienda. 

Cubierta de teja cerámica curva tipo TBF mod. romana canal fijada sobre rastreles de madera de pino de 40×30 mm; rastrel para el aislante de lana de roca de 150 mm de espesor tanto en cubierta como en los vuelos. Lamina impermeable transpirable contra nieve y lluvia. Con una pendiente de 30-35%.

El sistema de calefacción es por Geotermia tanto para la calefacción como para el agua caliente sanitaria (ACS). Cuenta con dos sondas geotérmicas de 100 m de longitud, con tubos en forma de “U”. La bomba de calor instalada se utiliza para la generación de agua caliente a 35ºC para la alimentación del suelo radiante y mediante programación diaria, para el calentamiento del agua caliente sanitaria, y su almacenamiento en el depósito de 300 litros a 50ºC.

Cierre de parcela con verja metálica galvanizada de simple torsion de 1,00 m de altura. Cierre de parcela a la calle con verja metálica con bastidores de herrería, a base de pletinas de acero, colocadas sobre el muro de hormigón.

*Mover a la drcha para ver más fotos*

TR_Izarra_1

TR_Izarra_2

TR_Izarra_3

TR_Izarra_4

TR_Izarra_5

Plano Araba I

    ¿Quieres saber más acerca de los servicios que ofrecemos en la construcción de casas unifamiliares?